秋も深まり、
外出が気持ちの良い季節になりましたね。
現在ご予約でご案内している
山形市・荒楯町分譲住宅ですが、
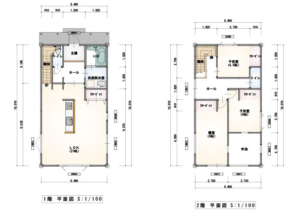
間取りはこちらです。
総2階・30.75坪の3LDKです。
1階はLDKと水回りになります。
玄関とLDKは造作の引き違い戸。
上部にはアクリルをはめ込み、圧迫感のないようにしています。
LDKのキッチン周りには
その場で使うものを適宜収納できるように
細かく造作棚を設置しています。
南側は吹き抜けで大きな窓があります。
掃き出し窓には縦型ブラインドを設置しています。
2階は3部屋とトイレ、物干スペースです。
主寝室はアクセントクロスで落ち着く雰囲気です。
また、吹き抜けに向かって2ヶ所室内窓を造作しました。
2階からは山も見え、近隣の方のお庭の緑も相まって
素敵な景色が望めます。
10月18日(土)9:00~15:00は
スタッフが常駐し、ご予約なしで自由にご見学いただけます。
ぜひ町屋×モダンの住宅を体感いただけると嬉しいです。
お待ちしております^^










